WEAZER Maison
緊急避難場所としてのWEAZER
WEAZERの強みはインフラがない場所に設置できることや地球環境に優しい点などがあるが、エネルギーと水を自給することにより、災害発生時の避難場所になりうるという点も大きなポイントである。
台風や地震で域内インフラに損傷があっても、建物自体が物理的に壊れない限り半永久的にエネルギーと水を供給することができるのだ。

初号機が設置されているWEAZER西伊豆は、伊豆市と沼津市の境にある舟山という集落であるが、実際に豪雨による断水や台風による停電などが発生しても、WEAZERは電気や水を供給し続けている。地域の方々にも、各家庭で万が一インフラが止まった場合、本施設を緊急避難場所として、頼って頂くように呼び掛け域内レジリエンスの向上に寄与している。
プロジェクトのはじまり
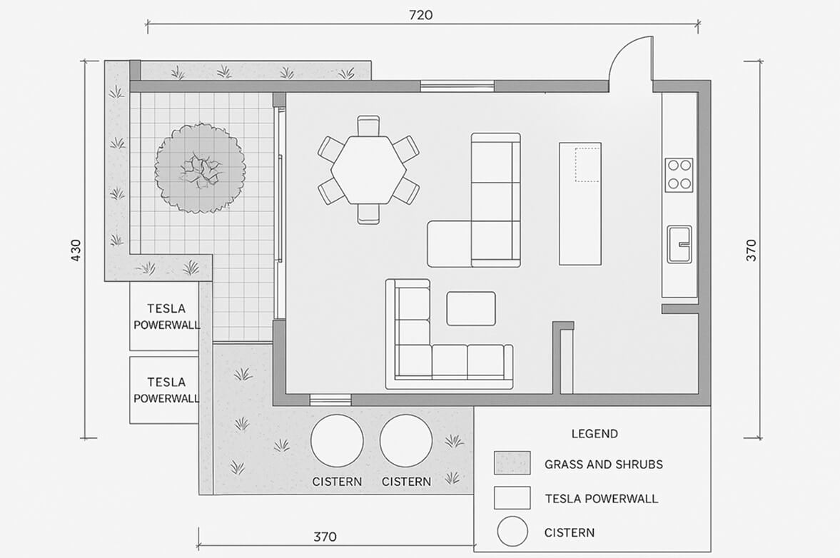
マンションの共有部分の1室をオフグリッド化し、災害発生時の避難場所として活用するプロジェクトを検討している。ARTHが保有する電気や水のオフグリッド技術やその設備をマンションの1室に導入し、ソフトウェアで制御・管理を行う。東京などの首都圏では首都直下型地震やそれによる二次災害の対策など各集合住宅においても、レジリエンス強化が1つのテーマとなっている。

WEAZERの用いるオフグリッド技術があれば、緊急時の電力供給、空調、お湯を含めた生活用水の確保などが期待できる。通常は系統電力や水道と併用しながらエコに活用し、緊急時はライフラインとなることによって、マンション全体の付加価値向上を目指す取り組みである。


事業スキーム